
해미국제성지 순례방문자센터 설계공모
경계 없음의 환대
해미국제성지는 새로운 세상을 실현했던 민중을 기억하는 장소
이곳 해미국제성지는 유명한 성인이 있거나 특별한기 적이 있었던 것도 아니지만, 1000명이 넘는 분으로 추정되는 많은 순교자들의 체취와 흔적이 남아있는 곳입니다. 그분들이 비록 가난했지만, 새로운 세상을 꿈꾸며 하느님 안에서 기쁘게 살다가 기꺼이 죽음까지 맞이하고 묻힌 곳이 무명 순교자들의 고향인 해미국제성지입니다.
넘나드는 ‘공간’, 마주하는 ‘나’, 넘어서는 ‘우리’
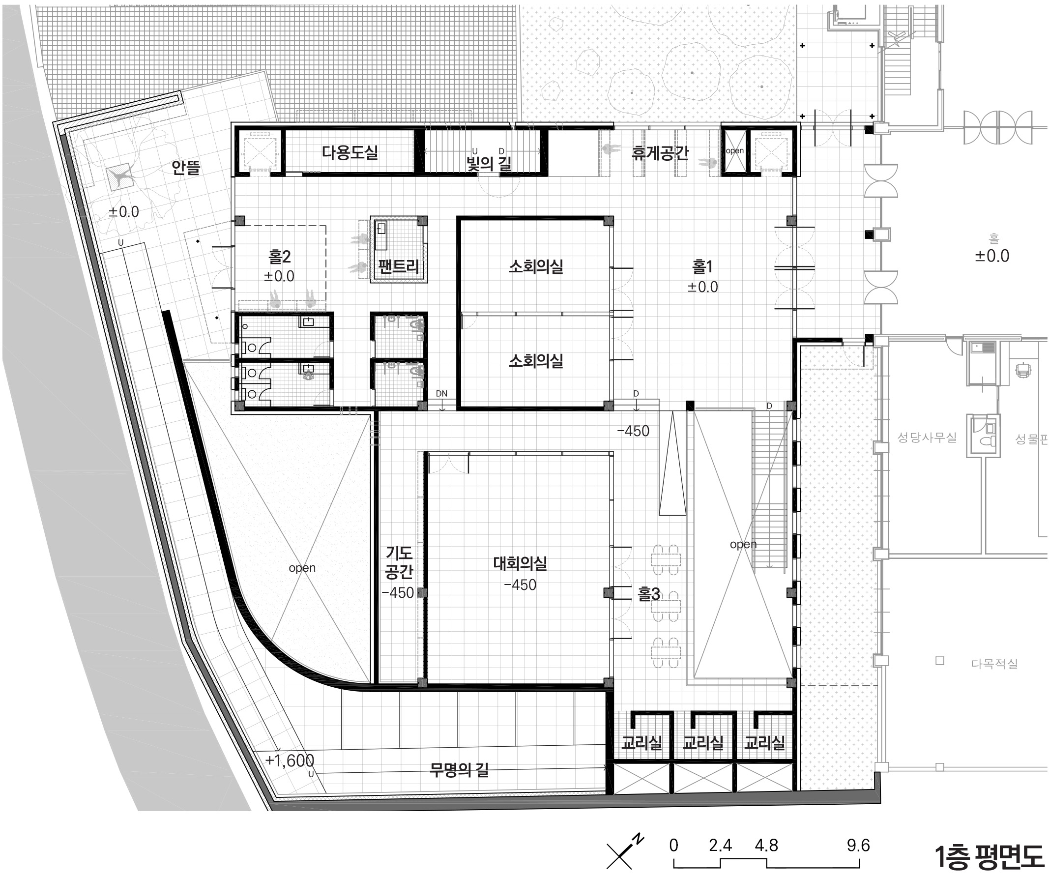
해미국제성지 순례방문자센터는 순례자의 시작과 끝을 함께하는 공간입니다.
해미국제성지의 닫혀있는 동선을 입체적으로 연결하여 전체를 순환하게 해주는 실핏줄 같은 역할을 합니다. 이 장소는 누구나 자유롭게 넘나들 수 있는 공간이며, 순례를 통해 찾은 나를 다시 마주하는 전환의 공간이며, 나를 넘어 우리 모두와 교감하고 만나는 장소가 될 것입니다
Project 해미국제성지 순례방문자센터 설계공모 Haemi Sanctuarium Internationale
Location 충청남도 서산시 해미면 Haemi-myeon, Seosan-si, Chungcheongnam-do
Program 종교시설 Religious facilities
Site area 대지면적 28,132㎡
Building area 건축면적 2,904㎡
Gross floor area 연면적 4,969㎡
Building scope 규모 B1F-2F
Building to land ratio 건폐율 10.32%
Floor area ratio 용적률 14.88%
Structure 철근콘크리트 구조 Reinforced Concrete
Exterior finishing 화강석, 노출콘크리트 Stone, Exposed concrete
Design period 2024
























