
살아봐요 장항 워케이션 조성사업 설계공모
제3의 집, 장항하숙-머무름에서 삶으로
갈대밭이 마을이 되어 길과 철로가 생기고 집이 들어선다. 너른 땅에 농사를 짓고 바다에 나가 삶을 꾸리고, 금과 철을 만지며 번성을 이뤘던 장항의 시간이 한켠으로 저물었지만 우리는 다시 분주히 자신의 일을 하는 사람들, 다른 삶을 찾아온 낯선이들을 기꺼이 반기며 다시 떠오르는 장항을 준비한다. 오가는 사람들이 언제든 머물 수 있는 여인숙이 줄지었던 땅에 새로운 사람들을 맞이하고 쉬게하고 살게하는 제3의 집 ‘장항 하숙’을 세운다.
Project 장항 워케이션 조성사업 설계공모 Jang Hang Workation Project
Location 충청남도 서천군 장항읍 Janghang-eup, Seocheon-gun, Chungcheongnam-do
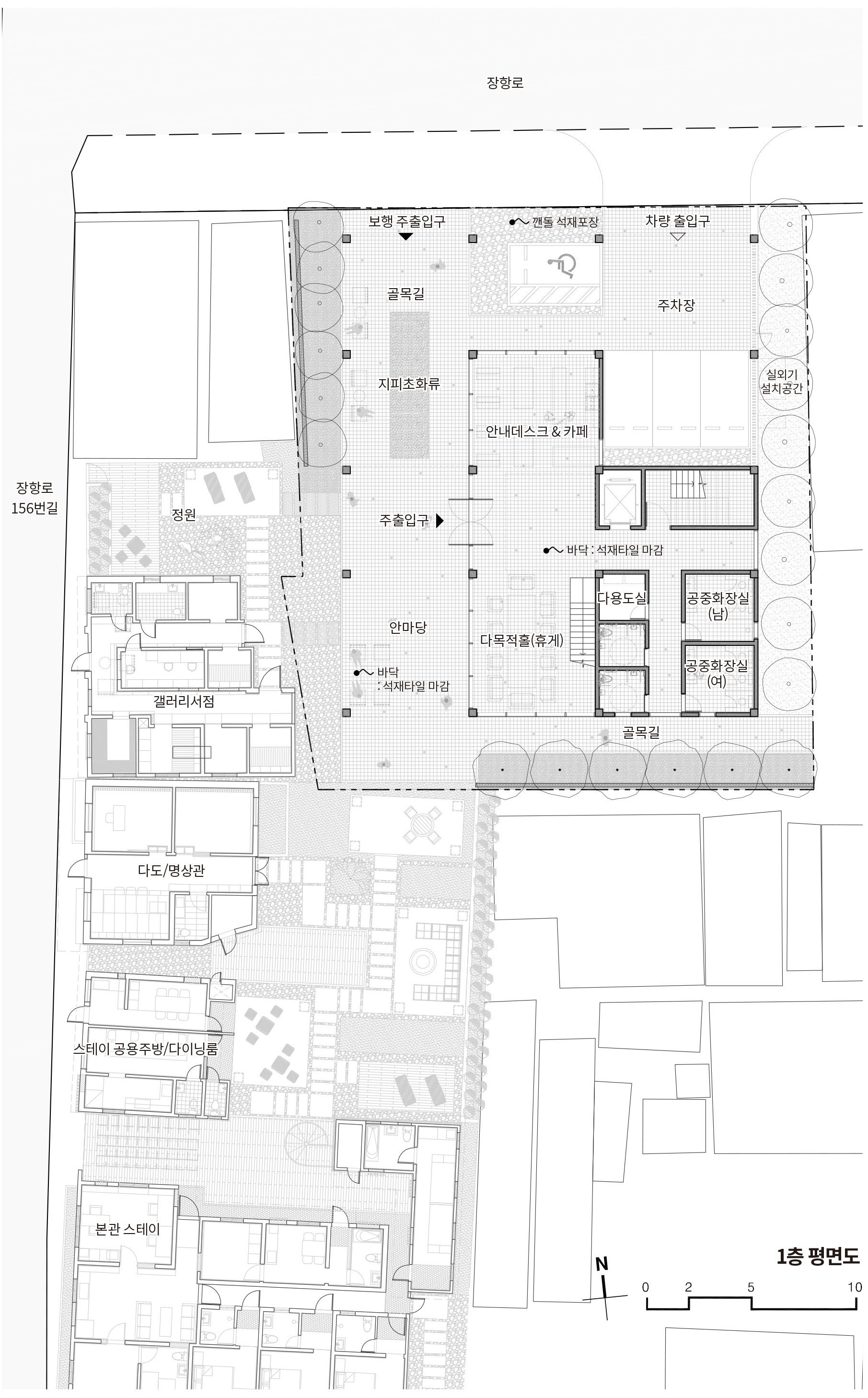
Program 근린생활시설 및 숙박시설 Neighborhood living facilities & Accommodation
Site area 대지면적 813㎡
Building area 건축면적 523㎡
Gross floor area 연면적746㎡
Building scope 규모3F
Building to land ratio 건폐율 64.45%
Floor area ratio 용적률 91.87%
Structure 철근콘크리트 구조 Reinforced Concrete
Exterior finishing 노출콘크리트/ 백색칼라스테인 Exposed Concrete/ White color stain
Design period 2024


















