팔달구 장안동 리모델링 공사
Project팔달구 장안동 리모델링 공사
Location수원시 팔달구 장안동 Jangandong, Paldal-gu, Suwon-siProgram 단독주택, 근린생활시설 Residence, Neighborhood living facilities
Site area 대지면적231㎡
Building area 건축면적 137㎡
Gross floor area 연면적 234㎡
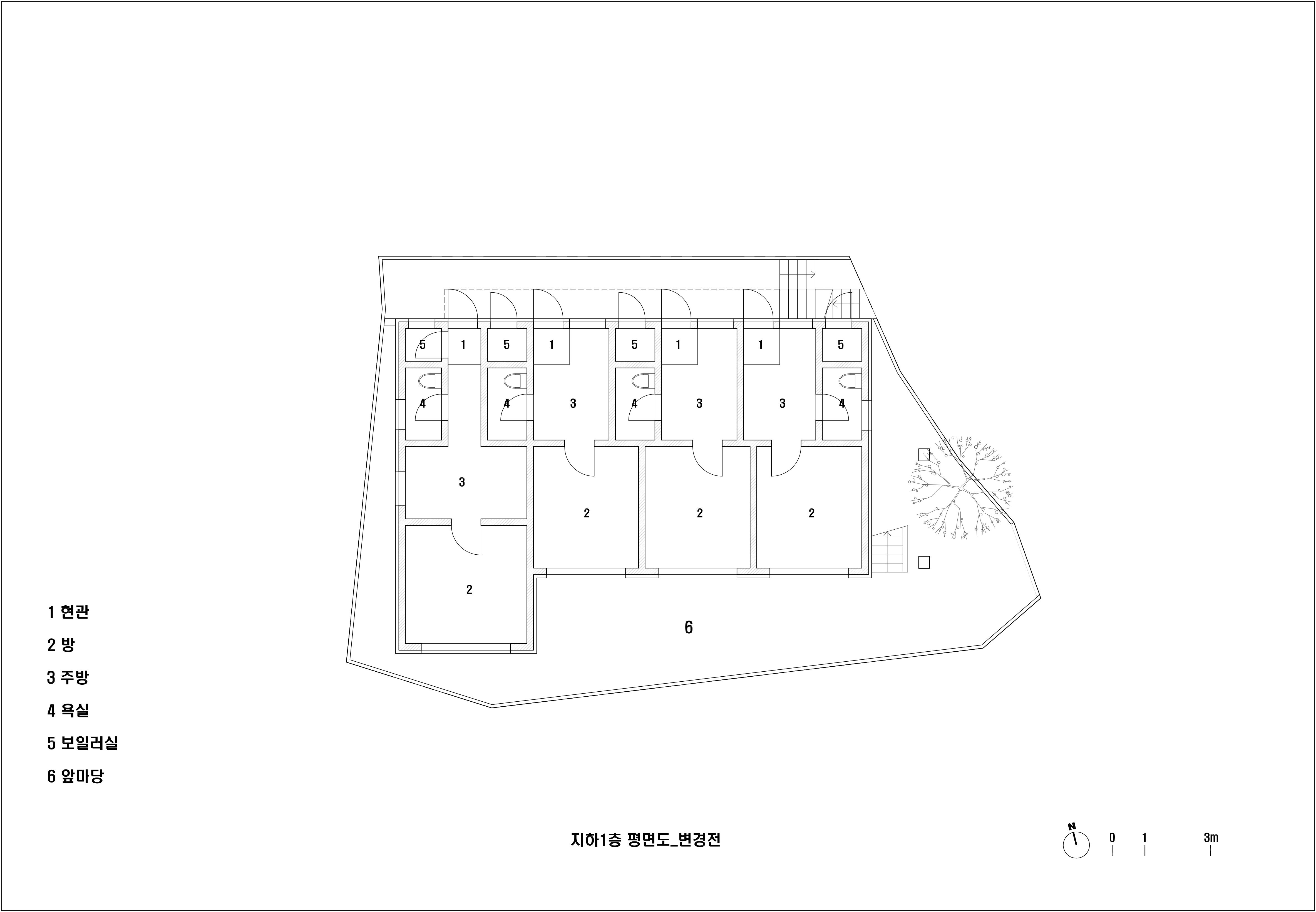
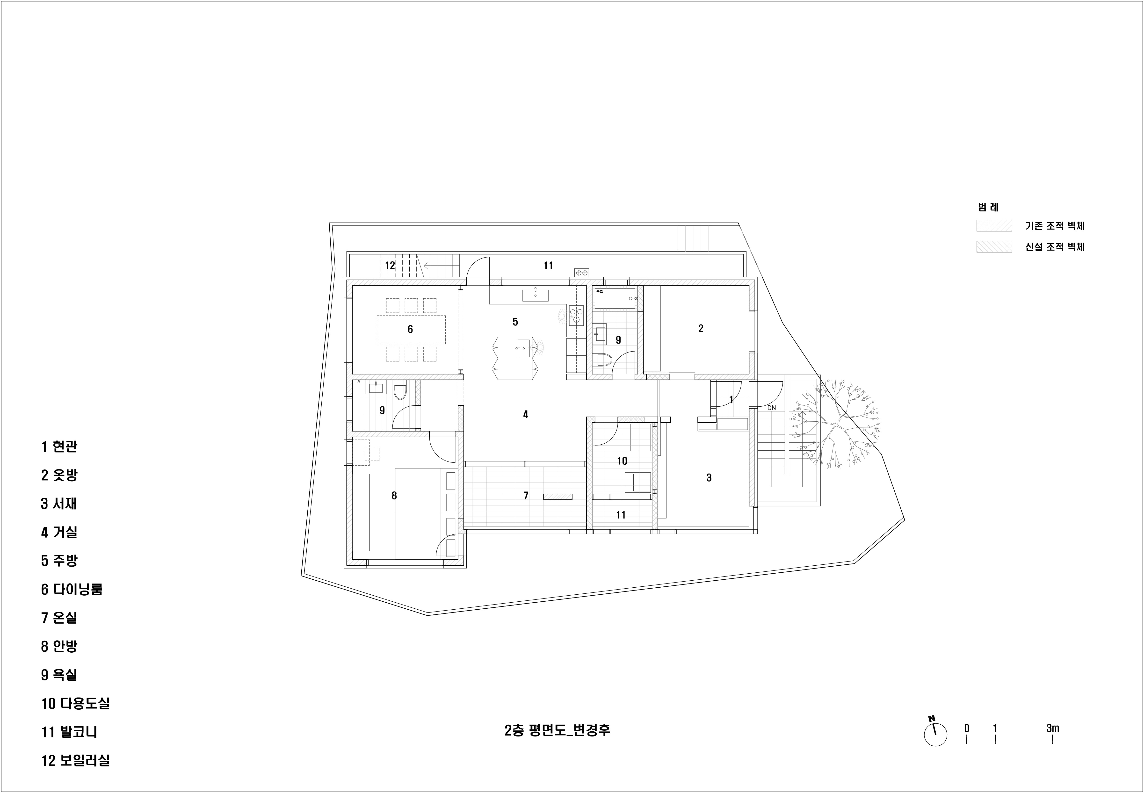
Building scope B1F-2F
Building to land ratio 건폐율 59.53%
Floor area ratio 용적률 101.45%
Structure 연와조, 철골구조 Brick, Steel
Exterior finishing 붉은벽돌, 로이복중유리 Brick, Low-e GlassDesign period 2022
Structure engineer 도시구조안전㈜
Mechanical engineer ㈜코담기술단
Electrical engineer ㈜코담기술단
Construction period ㈜아르케








































